90后小夫妻北歐風兩人居改造:小戶型也有大天地!
來源:北京居佳祥和裝飾工程有限公司 日期:2022-12-09 09:04:01
- 詳細介紹
本案例是一對結婚兩年的90后小夫妻,因為暫且沒有要寶寶的打算,所以他們一直想著將老房重裝一下,提高一下兩人的生活品質。女主人的要求是,在空間和視覺設計上盡量寬敞,然后儲藏空間要盡量大一點,男主人希望在原來的基礎上有一間辦公用的書房。
鑒于他們房屋是85㎡的小戶型,在設計時花了不少空間上的心思,最終呈現的效果案主很滿意:簡潔大氣的北歐風,同時又不失生活氣息。起居空間主打視覺效果,增大一倍,儲藏空間足夠放下兩人所有的雜物。接下來就來看看吧!
房屋信息:
面積:85㎡
戶型:兩室兩廳兩衛
常住人口:兩口人
裝修風格:北歐風
裝修費用:12萬
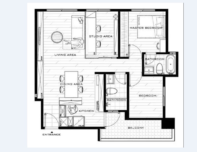
設計后戶型圖
可以看到在原始戶型的基礎上將客廳隔成兩個空間,新建了一個書房。可是這樣是如何讓客廳不顯小,增大視覺效果的呢?接著往下看吧!
玄關
與玄關正對的就是大面積落地窗,會給人豁然開朗的感覺。左右兩邊都是玄關柜,一是方便放置換下來的衣物,二是給整個房屋增添了儲藏空間。
客廳
。簡約設計的矮茶幾能很好地節省空間,同時又非常實用。沙發采用布藝設計,灰色和整個北歐風色調十分和諧。
沙發墻這一面,將背后的空間設計成書房,但同時采用透明墻面,讓里面的構造可以一覽無余,不遮擋視線,所以視覺上并不會有逼仄之感,
相反在家里有這么一間“透明屋”還會顯得十分有趣。
最后看電視墻這一面,采用壁柜和墻面拼接的形式,、簡潔高雅。下面的電視柜構造簡單,兼具實用和美觀。
書房
介紹完了客廳,就來看看作為沙發背景的書房吧。從外面看上去,透光性非常好,白色格紋邊框又增添了一點線條感,優雅大方。
書房里有一個大的電腦桌,可容納兩人同時辦公,黑色靠背座椅簡潔舒適,非常有商業精英感,滿足主人日常需要。
辦公桌背后是一排多格陳列柜,同時也可以當做書柜使用,還有多個抽屜設計,便于收納和存放東西,在需要的時候也能很快找到。
餐廚區
餐廳和客廳一體式設計,顯得起居空間更大。木質餐桌干凈整潔,符合北歐風的風格基調。
餐桌上方半圓設計磨砂吊燈保證照明,同時能給整個餐廳蒙上一層柔光,增添了整體的氛圍感。后面的方格框花架很有設計感,同時能給整個空間增添一點綠意。
這是從餐廳看向客廳的視角。整個空間由于散射和反射,有一種布滿陽光的感覺。
主人精心準備的下午茶。精致生活從擺上刀叉和桌布開始。
餐桌后方設計一個小吧臺,方便烹飪。同時廚房內現代設施一應俱全,讓主人的每一餐都不用將就。
主臥
主臥設置了大面積壁柜,可以存放各種衣物,滿足了女主人對于儲藏空間的要求。旁邊的落地窗保證了房間的采光,同時雙層窗簾又有很好的遮光效果,滿足主人任何時候對光線的需求。
衛生間
干濕分離設計,安全舒適,寬大的盥洗臺和盥洗鏡面非常大氣,能讓兩人同時梳洗。
最后的話
本案例是一套與眾不同的北歐風小戶型,透明墻面的設計讓整個空間從視覺上不受阻擋,顯得寬敞明亮,顏色的疊加與白色框架勾邊為整間房屋增添了不少趣味。一間房屋不僅僅是家,更是心靈棲息的港灣,
