三室爆改住下一家六口,還有衣帽間和獨立書房
來源:愛空間科技(北京)有限公司 日期:2022-10-25 16:55:42
- 詳細介紹
家對于我們每個人來說是安全感的來源地,在外身披鎧甲繃著一根弦,只要回到這里,我們就可以卸下防備,拋開生活的偽裝,留下最柔軟輕松的自己。
屋主是上海的一對中年夫妻,一雙兒女都在國外,是時候享受一下新的生活了。這是一個通勤便利的房子,經過參觀發現周圍的環境和生活配套都很不錯,就下定決心買了下來。女主人說,對家里環境的整理不希望太頻繁,清潔和收納便利一些比較好,每次回到家希望得到的是輕松而不是一堆雜務。男主人說,妻子從年輕至今都是一個精致愛美的女性,從小在書香家庭成長,家里需要一些安靜的地方可以讓她閱讀。
經過進一步的測試和了解,兩人確定想把家裝成復古風格,所以,我們決定采用白、木色為主色調,家具選型盡量典雅小資,整體空間干練而不失溫暖,來為其呈現出新家。如果你想取取經,那就別錯過啦~一起來了解一下~
戶型:三室兩廳
風格:復古風
常住人口:2人
面積:125㎡
裝修花費:22萬
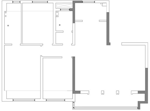
原始戶型圖
▼戶型解析
①入戶欠缺收納體系,影響室內長期的整潔。
②陽臺與客廳之間的開口不大,采光和空間利用率需要提升。
③原廚房和餐廳過于狹窄零碎,環境封閉。
④次臥閑置有些浪費,需要重新規劃功能。
平面布置圖
▼調整策略
①進門設計鞋柜,提升入戶區的儲物性能。
②客廳與陽臺的原有隔墻摘除,擴大采光接收口,提升公區光照度。
③拆除原餐廚區的實體墻,化零為整歸為廚房,餐廳挪到客廳旁,解決廚房封閉狹窄的情況。
④次臥規劃為多功能房,可閱讀、休閑或在必要時作為客臥。
客廳
客廳以藕粉色、純白色為主,采用懷舊物件作為裝飾,巧妙利用中古家具與內斂的色調交相呼應,呈現出具有時間沉淀感的文藝韻味。
整體改變傳統的布局,頂部使用石膏線作四圍花邊,沙發不靠墻擺放,更沒有常規的電視柜,怎么復古怎么來。
棕色絲絨沙發像極了一杯濃郁的咖啡,搭配櫻桃木的圓形茶幾,復古氣韻完全藏不住,就連一張邊幾都充滿了設計細節,鏤空材質仿佛古羅馬建筑,飽含文化底蘊。
夫妻倆下班喜歡遛狗和看書,所以沒有規劃常規的電視背景墻,定制黑色壁爐進行裝飾,壁爐臺面可以擺放中古裝飾品,旁邊放上墨綠色的絲絨單人沙發以及流蘇落地燈,傍晚把腳搭在坐凳上,窩在沙發里看書,時間在這一刻都慢了下來。
餐廳
餐廳規劃在客廳旁邊,光線和面積比原來提升了不少,用餐、休閑、聚會模式不存在明顯的邊界,自在又舒服。
餐桌椅是全套胡桃木的材質,桌面鋪上了純白蕾絲,溫馨中增加一些清新,擺放鮮花和綠植同時點綴,用餐環境散發著羅曼蒂克的氛圍。
墻面安裝了茶杯柜,地上放置了餐邊柜,無處不在的儲物功能,保證了空間的整潔清爽,兼具美觀與實用性。
餐燈是營造氛圍不可或缺的重要物件,一盞燈的材質、顏色和造型決定了餐廳的格調,這里采用了古銅鏈條款式的玻璃花朵吊燈進行點綴,矜貴的小資氣質油然而生。
廚房
廚房墻面采用白色文化磚,櫥柜以白色和草綠色板飾面打造,搭配銀色的把手,充滿了清麗的田園氣息。地面引入復古幾何花磚,瞬間讓平淡的角落煥發新生,更加立體抽象,體現出獨特氣韻。
主臥
主臥的床頭背景墻用石膏板+石膏線進行裝飾,塑造出規整的層次,左手邊的睡眠區布置得舒適純粹,采用實木家具,右側床頭柜采用花腿小邊幾常規款式,十分靈活生動。
床體是特意定制的,對稱的花邊加上手繪的花朵圖案,簡簡單單讓人心安,在這樣的環境里入眠,就像置身大自然一樣輕松愜意。
臥室內帶有飄窗,夫妻倆可以在這邊喝茶、談心、看風景,全身心享受這種久違的二人世界。
衣帽間
其中一個臥室打造成了衣帽間,與主臥形成完整的套系,左右兩側對稱定制衣柜,飄窗做成抽屜,存放護膚品和首飾,女主人可以在此梳妝打扮,找回年輕時美好的自己。
主衛
主衛運用鏤空玻璃進行了區域劃分,豐富空間層次,內置浴缸,滿足多種淋浴方式。
多功能房
另一件臥室改成了多功能房,值得一提的是,紫色+藍色墻裙,并用石膏線點綴,其中一面墻繪制碎花圖案,盡是夢幻的視覺體驗。
拍攝的時候,屋主家的柯基趴在上面午睡,這里大概是它常駐的地盤了~
地臺床承載著室內的儲物、休閑和睡臥功能,鋪上10公分不到的軟墊,拿上幾本書,吹著徐徐涼風,可坐可躺盡情探索居家趣味。孩子回來探親,也能在此小住一番。
公衛
公衛沒改變位置,安裝了懸空洗手柜,鋪貼條形磚,裝上化妝鏡,保留應有的功能,簡單實用。
