手把手教你改戶型,100㎡改出超強「擴容」和「收納」
來源:愛空間科技(北京)有限公司 日期:2022-12-02 11:39:03
- 詳細介紹
位于廣州白云區,面積為100m2的舊房,也住了有些年頭了,原本房子里頭的設計,現在看來已經非常老舊了,無論是風格還是布局上,沒有規劃足夠的儲物空間,讓許多雜物隨處亂放,空間十分凌亂,我和我媳婦也都感到不太滿意,于是選擇了對這間舊房進行重新改造。這也有助于居住幸福感的提升,緊跟時代腳步的簡約風設計!幾乎整個房子內部全都大變樣!客廳從臟亂差變的簡樸素雅,合理分區讓小衛生間也能擁有干濕分離,大量的儲物空間把雜物都收拾的服服帖帖的,老房子是怎么搖身變成精致的簡約住宅的呢?一起來看看吧!
屋主信息
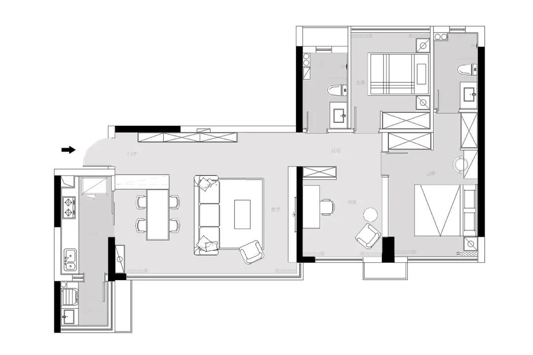
戶型:兩室一廳兩衛
風格:現代簡約
面積:100m2
花費:10萬
家庭成員:兩口人(父母偶爾來住)
客廳
客廳的設計樸素雅致,選用了木色+灰色作為主色調,一盤綠植點綴其中,賦予空間些許自然氣息,柔軟舒適的長方形沙發,搭配同色系的毛絨地毯,舒適的氣息油然而生。
大面積的開窗,讓室內空間的采光得到保證,白色的紗簾不僅擁有輕盈的視感,也讓進入客廳的光線變得柔和,采用無主燈的設計,讓天花板顯得更為干凈簡潔。一側的墻面都設計成儲物空間,完美滿足了日常的收納需求。
屋內大部分地面都是木質的木地板,視覺上與其他設計相呼應的同時,在心理上更讓人感到溫暖愜意。
餐廳
餐廳就在客廳邊上,共處于一個開放空間,餐桌的造型簡約有致,溫潤的木材營造溫暖的用餐環境,在這樣的環境下用餐,仿佛讓食物都變得更加美味,兩盞吊燈在餐桌上方提供照明。
一邊的小柜子上擺放了兩幅藝術畫,加上一盤花的點綴,自成一處藝術性十足的一角,
桌面上也可以擺放一些酒或餐具,拿取都非常的方便。
廚房
黑色金屬邊框包裹的玻璃移門,將廚房區分開來,廚房選用了白色的瓷磚鋪貼墻面,一方面也是由于廚房油煙較重的影響,使用瓷磚更方便日常清潔。
櫥柜的柜門都采用了木飾面的裝飾,搭配灰色的地面一起,洋溢出一種自然的氣息,在滿是人間煙火的廚房,增添一抹清新。
通向臥室的走廊,旁邊的一面木質儲物柜,既可以放置屋主人心愛的手辦等收藏品,也可以當做小物件的儲藏空間,來來往往間取放十分方便。
主臥
臥室內部的擺設相當簡單,除了必要的家具外幾乎沒有多余的修飾,這正符合臥室作為你休息場所的本質,越簡單,越高級。
在木色的床頭背景墻和木門中,貼墻的衣柜是全白的,讓空間不會顯得過于單調。
主衛
主衛內使用玻璃將淋浴區分隔出來,雖然空間有限但同樣實現了干濕分離,洗手臺下方的木質抽屜設計在這里與整個空間的設計相照應,延展開來的大面積的鏡子,似乎也在彰顯著主衛的地位,更重要的也是可以多人同時使用,日常更方便。
次臥
次臥的空間也不是很大,延續了主臥簡潔的設計元素,父母或親朋好友偶爾來小住,空間也足夠用。
一副畫作,一盤綠植,悄然點綴著這片空間,絲毫不繁雜的裝飾與整個設計理念相契合,用最簡單的手法勾勒出不俗的意境。
次衛
次衛的設計幾乎和主衛保持一致,只在洗手臺的材質和掛鏡的有所區別,主次一眼就分辨出來了,洗護用品用具也都可以放在洗手臺底柜內,視覺上干凈整潔。
這就是舊房改造后的新貌了,簡約的設計卻并不簡單,實用與美觀兼備!
