小兩口的“低欲生活”,超簡潔的125㎡北歐風帶娃不愁
來源:愛空間科技(北京)有限公司 日期:2022-11-22 08:37:09
- 詳細介紹
我和老公都是對生活非常有態度的人,崇尚北歐的慢生活方式,想選擇“低物質欲望”類型的家裝,回歸最本真的生活。對于奢華大氣的裝修風格,我們都認為反而會讓居住的人拘謹。物盡其用,能省則省,給家里做“減法”是我們的共同追求。
歷時五個月,最終的效果讓我們感到驚艷。全屋的主體設計干凈、潔白,大面積留白的設計,很符合我們倆夫妻的“低欲”生活。
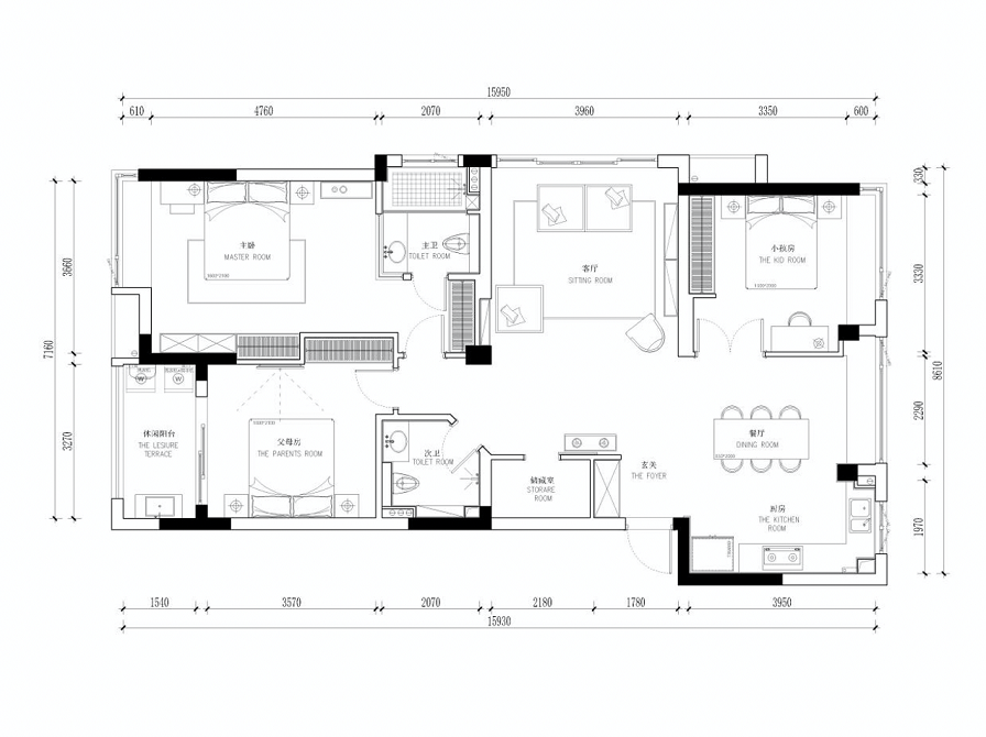
房屋信息:
面積:125㎡
戶型:三室兩廳兩衛
風格:北歐
裝修成本:17萬
平面圖
建筑面積125㎡,坐標廣州,我們和父母同住,還有一個10歲的兒子。原戶型布局中,廚房是封閉式的,空間比較狹小擁擠,設計師根據我們家人的需求和生活習慣,做了以下變化:
1、打通廚房,改造成開放式廚房設計,讓空間通透感增強。
2、陽臺與客廳打通,增加室內面積,擴大整體空間感。
3、在全屋不同區域打造收納柜,增加儲物空間,保證了全屋整潔。
玄關
進門玄關的左側打造定制了一個頂天立地的玄關柜,不僅沒有衛生死角,還可以收納鞋子等家居物品,實用性強。
站在玄關處,可以看到家里的設計非常簡約大氣,讓人一進門就感覺到舒適與自在。
客廳
客廳整體色調以優雅的灰白色為主,簡潔統一的色彩讓空間看起來更寬敞明亮,加以落地窗絕佳的采光,有效地利用公共空間層次,給予開闊之感,塑造簡單干凈的氛圍。
白色的立體墻面,沒有過多繁雜裝飾,看起來就令人十分的舒適。淺灰色地板給人寧靜的感覺。
被兒子稱為豆腐塊的懶人沙發是我的最愛,這種北歐布藝沙發舒適度極高,即使睡沙發也是一種享受。
用客廳邊柜代替茶幾,可以增加收納空間。客廳中間鋪上柔和的地毯,孩子可以直接坐在地上玩耍,安全又自在。
餐廳
客廳與餐廳的格局位于對立面的對角線上,選擇色調一致的墻體與地板,可以還原家居的格局之美,相互照應,展現出各自獨立的空間氛圍。
設計師在餐廳的窗戶下方巧用空間,打造一個餐邊柜,既可以增加收納空間,又不妨礙采光和通風,讓用餐環境更加自然舒適。
原木餐桌的自然紋理和質感,凸顯簡約流暢的線條感,對開門的冰箱也選擇了純白色,與廚房設計融為一體。
在精致的器皿裝飾下,連食物都變得更加美味了。
在餐廳用餐時,也可以看到在客廳玩耍的孩子,彼此交流更加方便順暢。
廚房
廚房改造成開放式設計,讓家居空間更加寬敞通透,互動性滿滿,以后下廚就再也不會感覺擁擠、壓抑了。
L型廚房布局,黃金三角動線,優化了下廚流程,減少烹飪時的來回走動,提高了效率。
潔白整齊的櫥柜設計,讓廚房里的鍋碗瓢盆都得到了很好的歸置,即使是開放式廚房,也不用擔心會給人留下雜亂的印象。
主臥
臥室的空間布置講究簡潔與舒適,純棉地毯鋪在地上,質地柔軟,即使光腳踩在上面,也不會感到冰涼,將盆栽植物放在房間的角落,起到活躍空間氣氛的作用,增添更多的生機與活力。
臥室飄窗采光極好,陽光透過窗簾投射進來,素雅的床品搭配自然的乳膠漆墻面,讓整個空間多了份安靜和溫馨感,十分愜意!
飄窗前擺放ins風梳妝臺,清晨醒來在這里梳妝打扮。感覺把家變成自己喜歡待的地方,是一件非常幸福的事情。
梳妝臺懸空設計,十分個性新潮,還有兩個大抽屜,可以放置化妝品,十分方便。
嵌入式衣柜設計大大地節省了空間,足夠容納一年四季的衣物。臥室中打造衛生間,再也不用擔心家人排隊上廁所的尷尬了。
以透明玻璃隔斷,還能增強房間的通透感與明亮感。
臥室衛生間同樣要注重干濕分離,壁龕設計更加美觀大氣。
次臥
父母的房間比較簡約,不用添加太多繁雜的裝飾,只有簡約柔和的床品和采光良好的窗戶,注重營造舒適的休息氛圍,提升睡眠質量。
水磨石底座的床頭邊幾是可移動的,造型也十分個性新潮。
想不到這是個花盆置物架吧,將它擺放在床頭邊上,就變成了一個簡約實用的床頭柜了,外觀上和臥室風格融為一體,還可以擺放書本和綠植,美化環境。
兒童房
兒童房選用墨綠色乳膠漆,搭配小綠植,護眼又清新。通過飄窗設計,為房間帶來合適且充足的光照,讓房間溫暖、有安全感,有助于消除兒童獨處時的恐懼。
衛生間
衛生間是黑白色系,家裝中的經典配色,永不過時。
為了節省空間,采用浴簾的隔斷方式實現干濕分離。懸空的浴室柜再加上鏡子的視覺延伸感,搭配起來很美觀且實用。
