西安獨居設計師的109㎡復式,極致演繹黑白高級感
來源:愛空間科技(北京)有限公司 日期:2022-11-09 14:56:03
- 詳細介紹
說在前面
“家不僅僅只是一個人日常生活場所,同樣也是居住者自我的精神領地。”
今天給大家分享的是一套109㎡復式極簡宅,屋主大良是一位建筑設計師,忙于事業的他還未結婚,帶著一貓一狗居住。
對于審美品位極高的他來說,簡約的布設、沉靜的格調、開放的內室空間、嫻雅的茶室,都是他想要的,當然還有愛寵的活動區,也要考慮進去。在整個裝修過程中,大良全程參與了設計師的工作,在和設計師溝通方案時他表示愿意了解和嘗試新鮮事物,并對全屋裝修提出以下幾點需求:1、客餐廳想要開放式的,各功能區無邊界可以保持最大寬敞度。
2、想要個休閑區,可以看書、品茗,放松身心。
3、通往二樓的樓梯,盡可能不要占用太多的地方。
4、還要有兩只愛寵的活動區域。
設計師通過分析戶型,進行合理規劃,拆除了不必要的隔墻,整個家居動線更加流暢,區域互動性也更好。最后的效果讓大良非常滿意。
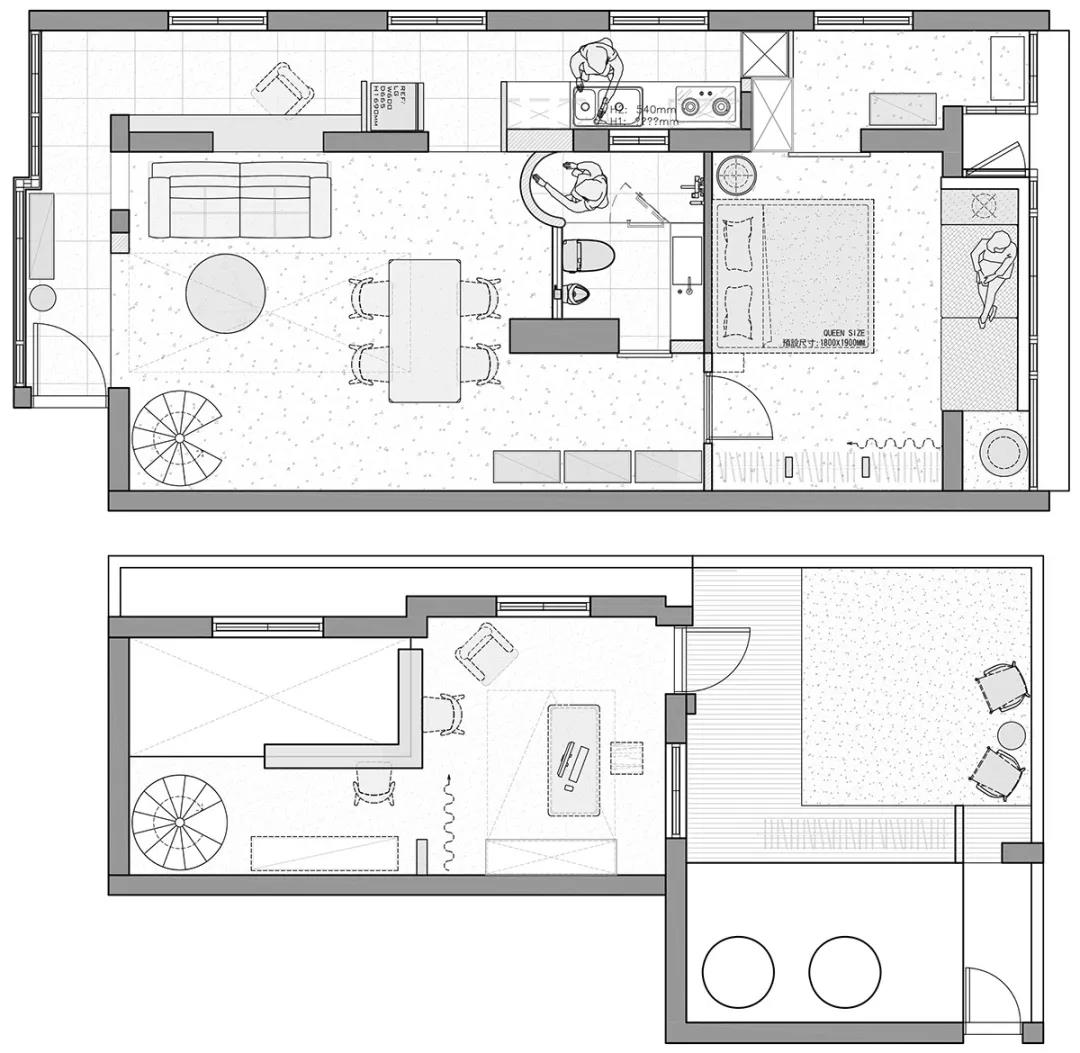
平面布局圖
戶型分析:原戶型狹長,于是屋主在保留承重墻和承重柱的基礎上,拆除室內局部多余墻體,打造了L型長廊和開放式辦公區,一體連通廚房,讓家居動線更加流暢,同時實現采光效果翻倍。
房屋信息:
面積:109㎡
戶型:一室兩廳一衛
常住人口:1人
風格:現代簡約風
裝修成本:20萬
玄 關
打開菱格紋定制的鐵門,水磨石地磚從玄關一直呈帶狀延伸進來,直通廚房,側面安裝整面落地百葉窗,為室內帶來充足的采光,擺放一個簡單的邊柜,搭配一盞精致的臺燈,可見屋主不俗的藝術審美。
客 廳
入戶右側便是客廳區域,大開間正對玄關百葉窗,顯得通透而敞亮,米色布藝沙發造型簡約,非常舒適,旁邊做了層板置物架,將承重柱與墻體相連,巧妙地把空間融合在一起,呈現出和諧自然的美感。
配套了黑色薄面圓幾和大象腿單椅,輕質可移動,以靈活滿足屋主的使用需求。
將沙發背景墻局部打通,與后面的走廊相連,巧妙利用墻體截面做了原木板臺,做書桌使用,空間利用100分。
客廳、餐廳到主臥皆采用無接縫地板進行鋪設,與背景墻的手工刮紋有異曲同工之妙,高級大氣。
屋主沒有選用傳統的電視柜,而是將電視機固定在一根豎管上,個性十足,背景墻則做留空處理,突出簡美的空間氣質。
墻角處做了旋轉梯通往樓上,采用白色鐵制洞洞板做成護欄,盡顯優雅別致的姿態。
屋主可以由此通向二樓陽臺,看到更美的景致,這里也是萌貓的游樂場,閑來無聊的日子,愛寵也可以通過攀爬樓梯獲得樂趣。
Q:小復式的樓梯怎樣設計更有效節省空間?
A:采用旋轉樓梯個性化設計,占地不大,柔和利落的線條,不僅提升了內室的美觀度,實用性也是棒棒的,還可以充當貓爬架,實現小空間大利用。
餐 廳
餐廳與客廳互通,擺放了一張長方形木質餐桌,營造出溫馨舒適的用餐氛圍。
旁邊的墻體預留了門洞,通往外面的廚房,生活動線更加方便,還可以增加補光,偶爾在這里看看書,也是相當愜意的。
臥 室
臥室的格調與整體家居相呼應,同時更多了一分沉穩靜謐的質感,沒有過多裝飾,也沒有花哨的色彩,布設相當理性。
采用無主燈設計,凸顯出利索的空間輪廓,1.8m大床擺放在中央,配上親膚舒適的床褥軟搭,定是一個安眠的好地方。
Q:5㎡陽臺怎樣個性化改造?
A:臥室陽臺采用水泥砌臺構建臨窗臥榻作為休閑茶室,側面配入一株小小的綠植,可以沐浴早晨輕灑而入的陽光,也可以享受徐徐而來的陣陣清風,真是一個品茗減壓的好去處。
Q:極簡臥室不要傳統大衣柜,該如何設計?A:根據屋主的極簡主義,要求精簡而實用,尤其在住房空間和布局有限的情況下,利用墻體圍成一個空間,里面安裝層板和掛衣桿,再用布簾進行防塵,進而充當衣柜的新型設計,也不失為一個好的選擇,而且還能節約經費,性價比很高哦。
衛 生 間
衛生間臺盆使用一體成型的人造石材質,通體的白色非常漂亮,墻面和地板則采用黑色仿石紋瓷磚進行鋪設,大膽而富有個性,還帶有幾分玄妙的科技感。
局部暗藏了暖光燈帶,頗有情調,采用黑框玻璃門實現干濕分離,保證空間干爽潔凈。
衛生間是全屋采光最弱的地方,因此在馬桶區以半腰墻搭配深色玻璃窗,來加強采光和通風。
