格調風雅の養生居所,老教授實力開啟『向往的生活』
來源:愛空間科技(北京)有限公司 日期:2022-11-03 10:49:12
- 詳細介紹
『前言』
本案業主是臨退休的一對夫妻,兩人是武漢當地大學的中文系教授,這套兩居室是女兒女婿買給二老“養生”的居所,他們對裝修有著明確的定義和向往:古典元素、氛圍古雅、侍弄貓咪、品茗作畫......
在提供合理的規劃方案后,屋主最終選擇委托我們來為之提供全案設計施工服務。前期溝通時,先是明確了愛好白色、木色的空間基調;執行中,全程跟蹤每一個施工節點,在細節處還原設計的比例和尺度;屋主選材時,給予了專業的指導,更在后期嚴格對接各項主材,例如墻面、地板的比例分段切割、柜體收口、全屋定制的圖紙對接和指導施工等;在軟裝擺設過程中,嚴格把控家具體量與飾品的比例,讓空間得以更好的呈現......
房屋信息:
戶型:兩室兩廳
風格:現代簡約
常住人口:2人
面積:97㎡
裝修花費:25萬
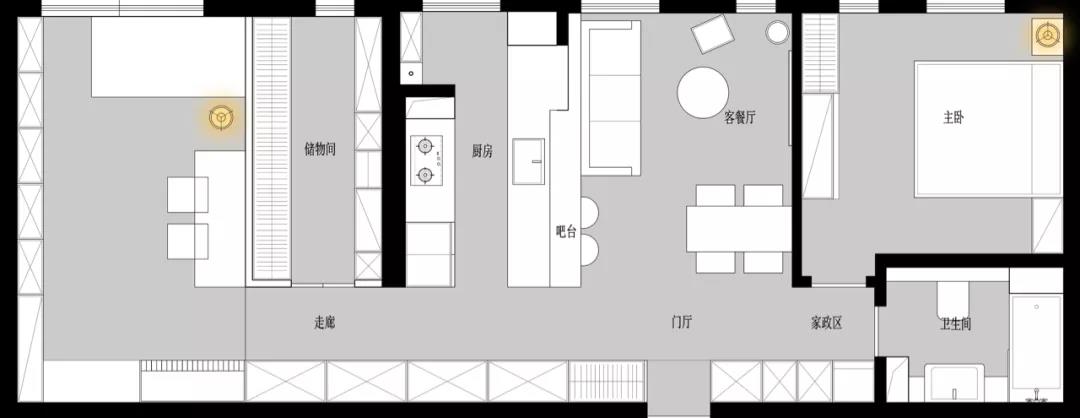
原始戶型圖
戶型整體很贊,但也發現了一些影響居住體驗的缺陷所在:
①客廳隔墻影響門廳光線,進門區域狹窄昏暗。
②封閉式廚房略為昏暗擁擠,走廊無光源。
③臥室占比不合理,造成浪費。平面布置圖
針對以上問題,我們在方案中進行了調整,改造策略如下:
①拆除客廳與門廳部分的剪力墻,使原本的過道融入客廳,提升采光度。
②廚房與客餐廳打通障礙,引入自然光線,同時增設吧臺,提升全屋的休閑屬性。
③將臥室一分為二,劃分出書房和儲物間,提高整體的功能性。
④全屋布置各類收納柜,減少占地面積,保證收納力最優。客廳
客廳作為二老居家小憩、會客休閑的地方,從布藝沙發流線、色澤的選擇,再到極簡銅燈的采用,由內及外,鱗次櫛比,古典與前衛交糅,如臨窗聽雨、掩面是新綠,筑木而居。
拆除了非承重墻之后,客廳和餐廳之間實現了暢通無阻的連接,室外的光線可以全方位引入到每個角落,使屋主的生活更為舒適溫馨。
百葉窗隔絕陽光的刺眼,也維護了室內的隱私;
莫蘭迪綠色絲絨沙發清新素雅,觸感猶如綿密的森林,腰部裝有護腰墊,中老年人居家看電視、閱讀、逗貓等,坐一整天都不會腰酸。
茶幾選用較為精簡的款式,滿足二老放置水杯即可,下方帶有收納空間,既輕便又彰顯生活品味。地面鋪滿絨毛地毯,可以隨意赤腳行走,還能在這里和貓咪玩上好半天。
餐廳
餐廳布局一目了然,從客廳到餐廳之間來去自如,方便日常的無障礙交流與互動。
方桌和四把座椅都是原木材質,文雅的氣息蔓延到用餐環境中,讓平淡的三餐變得更有情調。
取消單一的照明形式,巧妙布設燈帶、射燈照明,通過鏡面、地面等反射,順應室內動線和整體結構。
廚房
以白色作為主色調,將空間縱向拉伸,現代廚具和潔白的櫥柜搭配,以及島臺餐盤的精致擺放,呈現出美觀大方的空間效果。
冰箱內嵌在灶臺一側,減少突兀感,拿取食材極為方便。
廚房忙碌的家人、島臺愛意滿滿的蔬果,看窗外落雪伴著佳肴滋滋作響,最幸福的時光大抵如此。
主臥
主臥的設計風格整體偏向于簡約,空間里散發著寧靜、自然而平和的氣息,搭配傳統的中式核桃木高架床,既順應房屋的主線結構,又以簡明的幾何線條勾勒出古典雅韻。
除了傳統的床架和床頭柜之外,臥室內還使用到木飾地板、金屬踢腳以及白色乳膠漆,現代的紋絡清新剔透、柔軟素凈,步入室內可以感受到漸漸鋪陳的美妙。
臥室的照明以臺燈為主,分散柔和的光線打在純白的情面上,匯在原木家具一角,并存古典和雅致,給予感官上的舒適。
書房
進入書房,整個布局通透釋然,和煦豐盈。淺色的墻面搭配木色地板,填充各類家具,散發著淡淡的清雅,讓人倍感輕靈。
家具的擺放很講究,基于屋主的習慣設置而成的擺放位置,既注入實用主義,又融合了古典元素。
滿墻的壁柜以木質、玻璃相結合,現代與古典的碰撞形成獨特的美感。教授本人是書籍、陶瓷古玩收藏愛好者,壁柜正好珍藏他的所愛,防塵效果非常好,完全不用費心打理。
仿古的桌椅訴說著東方傳統的詩書意境,桌面上擺放著墨和宣紙,舒展大氣的空間滿足主人的潑墨揮毫。
利舊家具混搭著文房四寶、現代小飾品,地面懸掛以水墨丹青,盈香典致,松散有余。
閑時女主人就著興致寫詩練字,安靜地享受著屬于自己一個人的休閑時光。
午后困意來襲,做個點心,烹盞香茗,品味舌尖的清香,享受難尋的都市慢生活。
衛生間
衛生間安置在臥室旁邊,便于起夜和日常洗漱。
濕區用隔門阻斷,進而防止水汽蔓延到室內,利于環境的干爽。
濕區部分,壁龕輔以隱藏燈帶照明,還能擺放一些香薰、洗護用品等小物件;
淋浴區墻壁安裝電熱毛巾架,不必晾曬就能每天使用干爽清潔的毛巾,粗中有細,生活精致度滿滿。
