無廣推薦!舊房翻新118㎡小三居,這高度實用性我慕了~
來源:愛空間科技(北京)有限公司 日期:2022-10-31 10:53:02
- 詳細介紹
2020年的冬天,我和孟丹決定要買房,因為我把過去幾年鏈家網的數據分析了一遍,發現每年春節之后房價必有一輪飆漲,按照我倆的預算,再不上車徹底沒戲。好,買!春節前,中介帶我們看了一圈,相中了位于白云區的這套二手房,綜合考慮就是它了。
對于我們這種996互聯網上班族,在家辦公是常態,所以最好有一個辦公區;父母偶爾會來小住,希望有各自獨立的空間;乎時在家時間少,廚房基本用不到,但是收納空間一定要多,家不必奢華,簡約、溫馨就好。
門窗嚴重變形,墻面開裂掉皮,水電老化,衛浴間因為沒有及時打掃留下的頑固污漬;全屋動線混亂,兩個臥室幾乎采不到光……二手房的通病幾乎一樣沒落下。
接下來就隨我一起來看看改造過程吧~
房屋信息:
面積:118㎡
戶型:三室兩廳兩衛
常住人口:2人
風格:現代簡約風
裝修成本:25萬
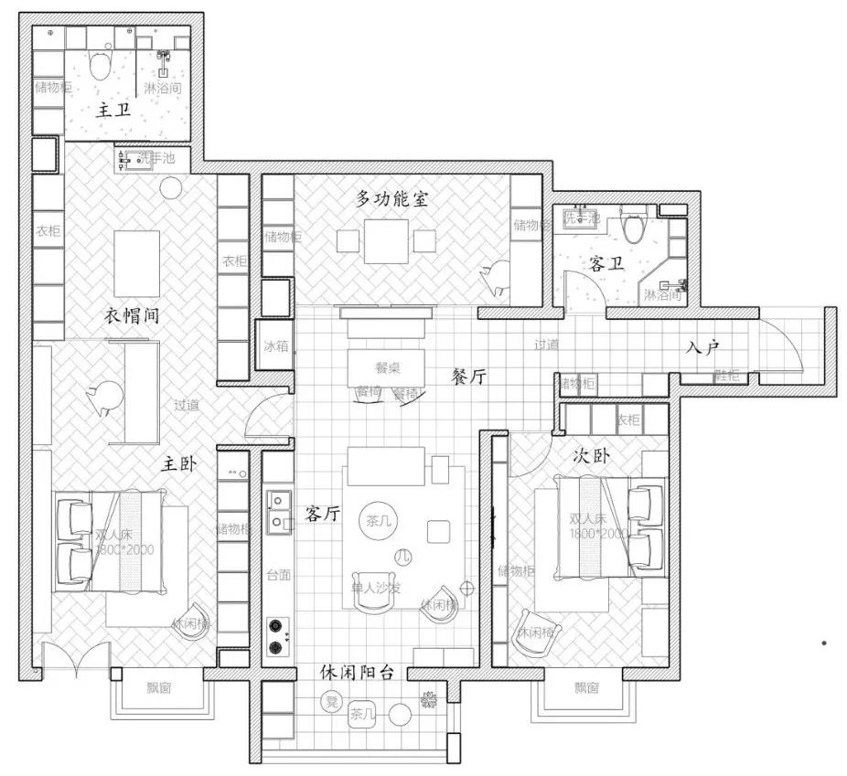
▲ 原始戶型圖
存在缺陷:
1、改造前的房屋是三室兩廳,整體布局零散雞肋。
2、從廚房到餐廳距離較遠,生活動線不便捷。
3、走道和封閉式廚房導致主臥采光不足。
4、原來的陽臺是細長的一條,不能觀景、利用率底,所以只能用來堆雜物。
5、主衛沒有窗,空間狹小陰暗。
▲ 平面布局圖
設計策略:
1. 把封閉的廚房改為開放式,和客餐廳相連,并把原廚房面積劃給主臥,解決主臥采光問題。
2.打通餐廳與旁邊的次臥,用作多功能室,另一間陽面次臥留給父母居住。
3. 主臥陽臺窗改成開放式外置陽臺。
4. 在主臥中間留出半開放式辦公區。
玄關
玄關區搭配收納柜,很好的隱藏了懸掛的外套,包包等,簡潔大氣。
設計師在進門玄關、衛生間吊柜等區域安裝了感應燈帶,開門之后不用四處找開關。
客廳:改造前
改造后
穿過玄關來到客廳,溫潤高級的質感撲面而來。
選擇雙面可坐的模塊沙發,簡單的雙人位,非常靈活,可根據需要隨意調整方向。
面向陽臺而坐,沙發與茶幾、單人椅形成一個圍合的區域,朋友聚會、喝茶再合適不過了。
客廳陽臺、開放式廚房、通往臥室的隱形門、冰箱四周柜體都使用了灰色,視覺上更有整體感。
沙發對面設置水吧,飲水機置于臺面,沏水泡茶,不必再去餐廳,中部開放格可以靈活擺放各種杯盞茶具。
綠植、木紋邊幾,給人一種在大樹下的悠然。
餐廳
全屋整體都選擇了無主燈,但在餐廳上方區域安置了吊燈,方便局部照明。
實木餐桌搭配相近色的木質家具和背景墻,柔和且不沖擊,營造出溫馨的用餐氛圍。
廚房
由于平時工作繁忙,居家做飯時間很少,對廚房需求不大,于是設計師把廚房直接移到客廳,并做成開放式,烹飪與用餐僅一步之遙,形成一條便捷的動線。
灰色系的櫥柜干凈利落 ,無把的外觀和墻面融為一體,更有整體性。
主臥
主臥的門非常隱蔽,與柜體融為一體,推開之后,是豪華大套間,各個功能一應俱全。
開放陽臺 + 兩米大床 + 半開放式辦公區+衣帽間 +衛生間,搭配灰色系,頂級商務酒店在這間臥室面前都遜色不少!
房子位于2樓,窗前沒有遮擋,采光充足,柔軟舒適的大床、溫潤的原木地板,結合素雅純凈的床品,提供了良好的睡眠環境。
為了獲得最佳觀景視線,設計師把原本的窗戶改為一個開放的外置陽臺。天氣好的時候可以站在陽臺上,張開雙臂便可擁抱喧囂的城市,一覺醒來又是能量滿滿。
床尾的通頂衣柜使用白色烤漆板,保證收納充足的同時,讓室內也更顯明亮。
靠近窗戶的單人椅是@孟丹的最愛,周末時,坐在這里看書或者看手機,疲憊的時候就抬頭看看窗外,可以最大限度的放松身心。
床頭增加一組高度適中的儲物柜來滿足置物功能。上方設置壁龕式書架,睡前隨手抽取一本進行閱讀,很是方便。
辦公區
在臥室內部用長虹玻璃隔出的辦公區,是我的地盤,若隱若現的效果,既不影響和家人的互動又能保證其功能性。
進入主臥后,左右兩側都可以抵達辦公區,身居其中無論是去陽臺、衛生間、客廳還是衣帽間都能保證動線最短,全屋布設按照我們的習慣量身定制,豪華程度堪比五星級酒店套房。
主衛
洗手臺外移后,和衛生間、衣帽間區域相融合,解救了原本狹小的空間,也讓動線更加流暢。半開放式的設計,可以避免遮擋光線,也由此能夠獲得更多的自然光。
洗手臺的這盞黃銅吊燈是我喜歡的單品,加上頂部燈帶,打開的瞬間就覺得很治愈。
多功能室
▲ 長虹玻璃移門后是多功能房
餐廳兩側都可進入多功能室,形成洄游動線,底部嵌入燈帶,讓這個「木盒」空間自帶懸浮感。
房間內部一整面收納墻,作為擺放書籍和日常的玩物的地方。另一側滿墻的壁柜更是可以容納四季的衣物和大件物品。簡約的白色+木色,讓原本的暗房也變得明亮起來。
書架墻底部嵌入燈帶,懸空書桌,更加輕盈也方便清潔。
這里也是我們預留的兒童房,即使將來有兩個孩子,從墻體中間一分為二,劃出兩間兒童房也沒問題。
次臥
次臥是留給偶爾來小住的父母的,全屋實木的家具質樸自然,床頭上的兩幅扎染裝飾畫,非常貼合老人心意。
公衛
為了老人使用安全,公衛做了干濕分離,隔絕水汽的同時打理起來也比較方便。
